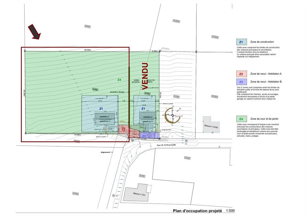
GESVES - OHEY : Superbe terrain à bâtir de ± 40 ares (lot A), idéalement situé à La Bouchaille.
Nichée au coeur de la province de Namur, la commune d'Ohey se distingue par son dynamisme et sa proximité avec Ciney, Andenne, Huy et Havelange (± 10 km). Vous y trouverez de nombreux commerces et commodités, ainsi qu'un accès facile aux autoroutes E411 et E42 (± 15 km).
Ce terrain séduira les amateurs de tranquillité et de grands espaces, offrant une vue imprenable sur la campagne environnante tout en restant proche de toutes les facilités. Selon le CU2 obtenu, il permet la construction dune habitation 4 façades, avec une orientation idéale : façade avant au sud-est et jardin au sud-ouest. Ne manquez pas cette opportunité unique ! Faire offre à partir de 190.000 (sous réserve d'acceptation du propriétaire).











.png?format=webp&width=1920&height=auto)

